Description
- Quiet location situated in a small development for those aged 55+ within walking distance of village amenities
- Light & spacious accommodation
- 2 double bedrooms
- Shower room
- Sitting room & dining room
- Modern kitchen
- Private garden & lovely communal gardens
- Garage & parking
- NO CHAIN
A light and spacious 2 bedroom attached bungalow, set within a quiet development for those aged 55 and over, situated on the edge of the village. NO CHAIN
Situation: The property is situated within a quiet, well-maintained development for those aged 55 and over on the edge of the much sought after village of Ticehurst, which offers a good range of shops and amenities including a village store/post office, greengrocer, chemist, doctor’s surgery, zero waste shop, café, pubs, gallery, primary school, village hall and recreation ground.
Wadhurst is just over 3 miles distant and offers a wider selection of local amenities and the regional centre of Tunbridge Wells is 10 miles distant and provides a comprehensive range of facilities including The Pantiles, the Royal Victoria shopping centre, cinema complex and theatres. Stonegate station (3 miles distant) and Wadhurst (4 miles distant) provide services to London Charing Cross (via London Bridge and Waterloo East) and Cannon Street with a journey time of about an hour. Regular bus services also operate from Ticehurst to Wadhurst and Tunbridge Wells and the A21 is just over 2 miles to the east providing a direct link to the M25 (junction 5) and the coast.
Leisure pursuits include Dale Hill Golf Course, which is within 1½ miles, and the beautiful surrounding countryside has many footpaths and includes Bewl Water Reservoir, reputedly the largest area of inland water in the South East, which is just over a mile away.
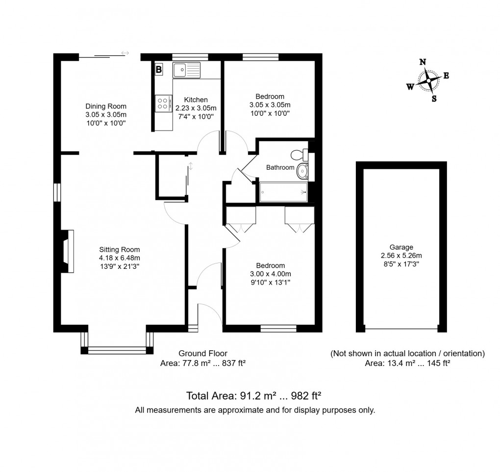
Description: 25 Cross Lane Gardens is a light and spacious attached bungalow built in 1987 with external elevations of brick beneath a pitched tile roof and double glazed windows and doors. The property has been well maintained by the current owner, providing a living space of approximately 982sq.ft/91sq.m and now offers excellent scope for some general updating.
The accommodation includes an entrance lobby, a spacious entrance hall with a large built in storage cupboard, a good-sized sitting room which extends to approximately 21ft with an attractive bay window to the front which is south facing overlooking the front of the development. The sitting room is open to a dining room which has sliding doors leading to a private terrace and the rear garden. There is a kitchen with an opening through to the dining room which includes a range of modern wall and base units, an integrated hob and oven and space for appliances. The main bedroom benefits from having fitted wardrobe cupboards and an outlook to the front. The second bedroom enjoys an outlook of the rear garden. There is also a shower room with a wash basin, WC and a large shower.
The property benefits from being at the front of the Cross Lane Gardens development, which is arranged around a quadrangle, with an area of communal gardens which are laid to lawn, providing a very attractive outlook.
A path leads to the bungalow either directly from the car park or through the development to the rear. There is an area of garden to the front including a shrub border. The rear garden has a good-sized, private terrace, and an area of lawn with well established flower and shrub borders which provide a good degree of privacy.
There is a single garage at the entrance of the development which is conveniently located near to the bungalow and there is also plenty of parking for residents and visitors.
Agent’s note: The property has a 999-year lease from 1987 with an annual service charge of £85 per month.
Services: Mains water and electricity. Gas central heating
Local Authority: Rother District Council (01424) 787878
Council tax band: D (£2,548.28 per annum)
EPC Rating: C
Post code for sat nav: TN5 7HY
Floorplan
