Description
- Virtual video tour available on request
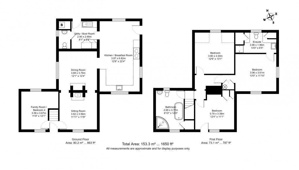
- 22’4 kitchen/breakfast room
- Sitting room
- Dining room
- Utility room
- Cloakroom
- Three/four double bedrooms
- Family bathroom & ensuite
- Gardens of approximately 0.28 acres
- Adjoining 3.25 acre field & stables (in need of repair/replacement)
- Off road parking
- Within 3 miles of the village
A very pretty semi-detached period cottage with gardens and an adjoining paddock of 3½ acres, situated in a wonderful rural position down a no through lane, bordering fields and farmland and within the easy reach of village amenities and the mainline station.
Situation: The property is situated in a lovely, quiet rural position down a private lane bordering open countryside within just 3½ miles of Wadhurst village, which offers an excellent range of shops and services for everyday needs including a Jempson’s Local store and post office, cafés, delicatessen, butcher, baker, pharmacy, bookshop, art gallery, florist, off licence, public houses, as well as a doctor’s surgery, dentist, primary school and the well regarded Uplands Community College and Sports Centre.
For the commuter, Wadhurst mainline station lies within 4¼ miles and provides a regular service to London Charing Cross/Cannon Street in approximately an hour. The A21 is also within easy reach and links with the M25. The regional centre of Tunbridge Wells is about 9 miles distant and provides a comprehensive range of amenities including the Royal Victoria Shopping centre, cinema complex and theatres.
The beautiful surrounding countryside is a designated Area of Outstanding Natural Beauty, with the cottage adjoining beautiful countryside and benefiting from nearby walks to Batts Wood, Wadhurst Park and Snape Woodlands; and Bewl Water Reservoir is also with easy reach.
Description: Barleycorn Cottages is a very pretty semi-detached cottage dating from the 1800s with attractive brick and tile hung elevations beneath a tiled roof and double-glazed windows. The cottage has been in the same ownership for over 20 years and has been much improved and sympathetically extended to provide spacious, flexible and well presented accommodation over two floors of approximately 1,650sq.ft/153sq.m. The property enjoys a lovely outlook over its gardens and surrounding countryside from most of the rooms, and benefits from having good natural light as well as period features throughout.
The accommodation includes a large, triple aspect kitchen/breakfast room which extends to over 22ft and has a tiled floor, an extensive range of shaker style wall and base units, and an Aga (electric). A door leads to a utility room and cloakroom which has a door leading out to the garden. A dining room leads off the kitchen and is open on both sides of the chimney breast to a sitting room with a window overlooking the front gardens and having an open fireplace fitted with a wood burner. There is a hallway with stairs to the first floor, and a door leading to a downstairs bedroom/family room. On the first floor are three double bedrooms – the main bedroom has an ensuite shower – and there is a good-sized family bathroom with a freestanding bath and a separate shower cubicle.
Outside, the property has off road parking for several cars with plenty of space for garaging, if required. The gardens wrap around the cottage with well-kept lawns and a path leads to the front door and to the side of the house, which has a covered porch. There is a terrace to the side and rear, ideal for outdoor entertaining, and the gardens are bordered by its own paddock to the side, a neighbouring field to the rear and the lane to the front with farmland and woodlands beyond. A small brook runs through the garden and there is a gate giving access to the paddock and stables.
Services: Mains water and electricity. Oil-fired central heating.
Current EPC Rating: D
Local Authority: Wealden District Council (01892) 653311
Council Tax Band: D (£2,424.30 per annum)
Floorplan
