Description
- Virtual video available on request
- Beautifully presented open plan living space
- Quiet, private location in sought after hamlet
- Within easy walking didtance of Bewl Water
- Planning permission for enlargement
A beautifully presented detached 3-bedroom bungalow set on a plot of 0.22 acres, with planning permission for enlargement, situated in a much sought after hamlet on a quiet lane just over half a mile from Bewl Water and within easy reach of village amenities.
Situation: The property is situated in a quiet, semi-rural position in the sought after hamlet of Three Leg Cross with its popular 14th Century inn, and is less than a mile from Ticehurst village, which offers a good range of shops and amenities including a village store/post office, chemist, pubs, gallery, café, primary school, village hall and recreation ground.
Wadhurst is within 4 miles and offers a selection of local amenities, including the well-regarded Uplands Community College, and the regional centre of Tunbridge Wells is about 10 miles distant and provides a comprehensive range of amenities including the Pantiles, cinema complex and theatres. Stonegate station (4 miles distant) and Wadhurst station (5 miles distant) provide services to London Charing Cross (via London Bridge and Waterloo East) and Cannon Street with a journey time of just over an hour. Regular bus services also operate from Ticehurst to Tunbridge Wells and Hawkhurst and the A21 is within easy reach and provides a direct link to the M25 (junction 5) and the coast. Gatwick Airport is about 45 miles to the west, the Eurotunnel terminal at Folkestone is about 40 miles to the east and central London is about 55 miles away.
There are excellent walks to be enjoyed on the numerous footpaths and bridleways, with beautiful surrounding countryside including Bewl Water Reservoir, reputedly the largest area of inland water in the South East, which is within walking distance, and Bedgebury Pinetum and Forest is also within easy reach.
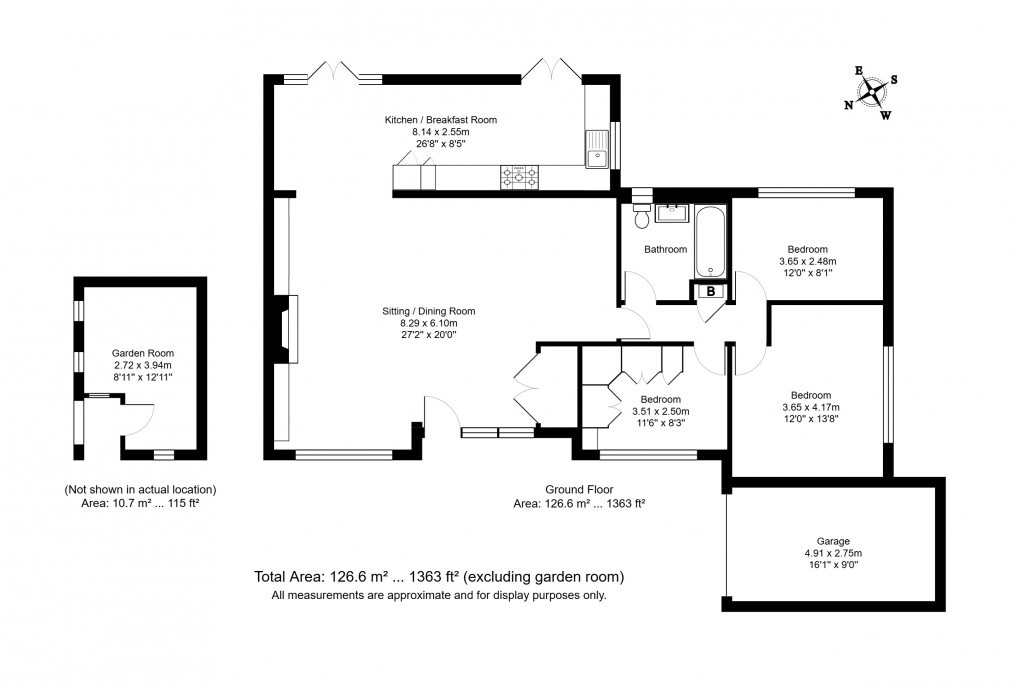
Description: Oakhurst is a much improved and beautifully presented detached bungalow, which has been remodelled and completely refurbished over the last 5 years, including re-wiring, a new central heating system, a new kitchen, bathroom, new flooring and redecoration inside and out. The house presents external elevations of rendered brick beneath a tiled roof, double-glazed windows and doors throughout, and offers spacious and flexible accommodation of approximately 1,363sqft/126.6sq.m with the benefit of current planning permission (Reference: RR/2025/564/P)) to extend to the side to create an annexe/additional bedroom, sitting room and kitchenette and to convert the existing attached garage with a new pitched roof.
The property provides a contemporary, open plan living space including a large sitting/dining room, which extends to over 27ft,and has oak flooring and French doors leading out to the garden and is open plan to a well-appointed kitchen, which also has French doors leading out to the garden and is fitted with an extensive range of wall and base units with Corian work surfaces and integrated appliances. A door from the dining area leads three bedrooms (two doubles and a single/dressing room) and a well-appointed family bathroom.
Outside, the property is approached through gates over a driveway with plenty of parking and leading to a single garage. There are front gardens which are laid to lawn with mature hedging giving a good privacy from the lane and a side gate giving access to the private rear garden. The landscaped rear garden is southeast facing is mainly laid to lawn with a terrace running along the rear of the property. There is a storage shed, greenhouse and a workshop/outbuilding.
Services: Mains water, drainage and electricity. Gas central heating.
Current EPC rating: D
Local Authority: Rother District Council (01892) 653311
Current council tax: F (2025/26 - £3,680.85)
Floorplan
