Description
- Virtual video tour available on request
- 4 double bedrooms
- 20ft sitting room
- 19ft1 kitchen/breakfast room
- Dining room
- Conservatory
- Cloakroom
- Boot room/utility room
- Family bathroom, ensuite wet room and ensuite shower
- Garage and parking
- South facing gardens of 1/4 acre
- Direct access onto village green
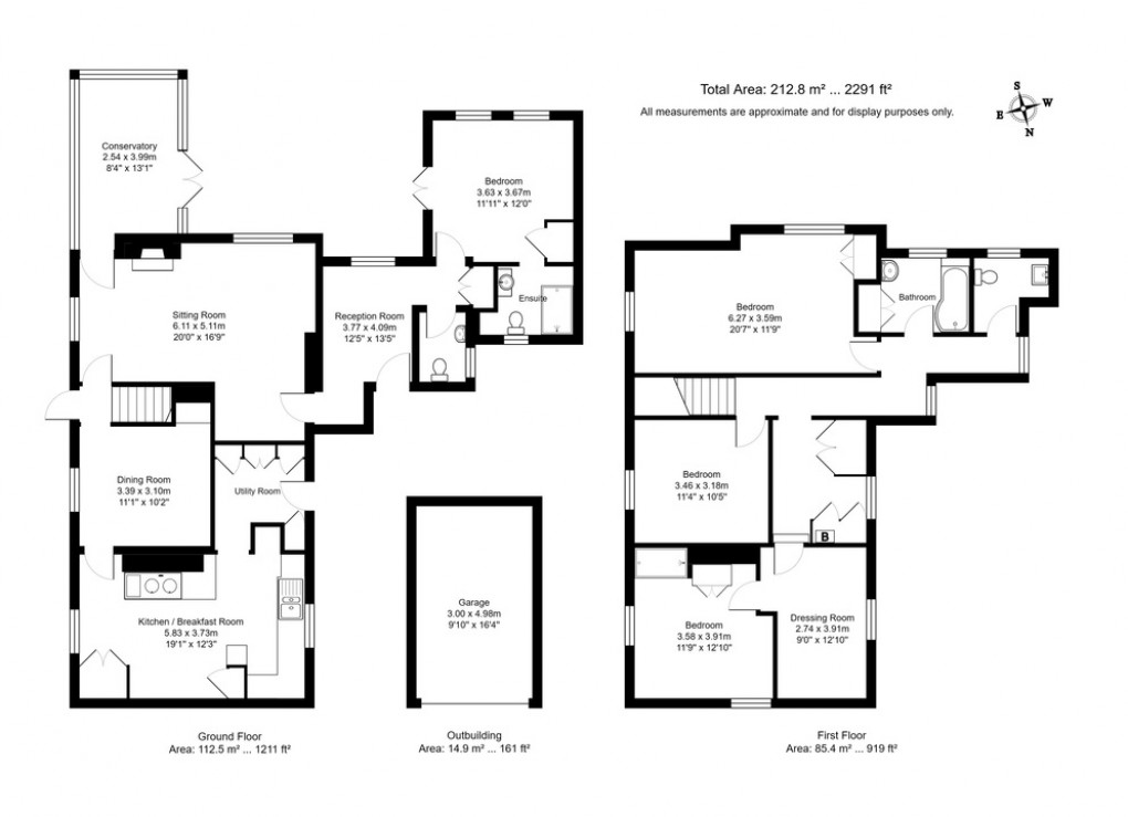
An attractive 4-bedroom detached Victorian house of approximately 2,130sq.ft with lovely south facing gardens of about ¼ acre, situated in the centre of the village with direct access onto the village green. NO CHAIN.
Situation: The property is situated in a convenient position in Flimwell village and backs onto the village green. Flimwell has a village hall, an award-winning smokery and wine store, pub, cricket ground with pavilion, playground, and café and restaurant at Flimwell Park.
Ticehurst village is 1.8 miles distant and offers a good range of shops and amenities including a village store/post office, chemist, doctor’s surgery, pubs, gallery, café, and primary school. Hawkhurst is just 3 miles distant and provides a wider range of shopping facilities including Tesco and Waitrose supermarkets. Wadhurst is 6 miles distant and offers a selection of local amenities, including the well-regarded Uplands Community College, and the regional centre of Tunbridge Wells is about 12 miles distant and provides a comprehensive range of amenities including the Pantiles, cinema complex and theatres. Etchingham station (4.7 miles distant) and Stonegate station (5 miles distant) provide services to London Charing Cross (via London Bridge and Waterloo East) and Cannon Street with a journey time of just over an hour. Regular bus services also operate from Flimwell to Tunbridge Wells and Hawkhurst and the A21 is in close proximity providing a direct link to the M25 (junction 5) and the coast. Gatwick Airport is about 45 miles to the west, the Eurotunnel terminal at Folkestone is about 40 miles to the east and central London is about 55 miles away.
There are excellent walks to be enjoyed on the numerous footpaths and bridleways, with the beautiful surrounding countryside including Bewl Water Reservoir, which is close by and reputedly the largest area of inland water in the South East where a wide range of water sports can be enjoyed, as well as leisure facilities at Bedgebury Pinetum and Forest and Dale Hill golf course.
Description: Lodgefield Cottage is a well presented detached Victorian house with attractive tile-hung and brick external elevations beneath a slate tiled roof, which benefits from large, double-glazed sash windows giving lots of natural light, period features throughout and provides spacious and flexible accommodation of approximately 2,130sq.ft/ 198sq.m.
The accommodation is arranged over two floors and includes on the ground floor: a good-sized, double aspect kitchen/breakfast room which extends to 19’1 and has an Aga. A pantry/utility room leads off the kitchen and has door out to the courtyard and garage, and on the other side of the kitchen is the dining room, which overlooks the driveway. Stairs lead to the first floor and beyond is a double aspect sitting room with a study area, a conservatory and door to a reception hall with a cloakroom and access to the ground floor bedroom, which has French doors leading out to the garden, a wet room and utility cupboard. On the first floor there is a spacious landing leading to three generous double bedrooms. One of the bedrooms has a dressing room, which could be used an extra child’s bedroom or study, and the bedroom has a shower cubicle. There is also a family bathroom with a separate WC.
Outside, the property has a single garage on the west side of the house with a courtyard leading to the front door and utility room, and a large gravel driveway on the east side, accessed through close-board gates, which provides parking for several cars. The gardens are a real feature of the property, being south facing and extending to approximately ¼ acre, with a well-kept lawn and mature flower boarders planted with a variety of mature shrubs and trees. There is a private terrace outside the conservatory and downstairs bedroom, ideal for outdoor entertaining, as well as a garden shed and gate giving access to the village green.
Services: Mains water and electricity. Gas central heating
Local Authority: Rother District Council (01424) 787000
Current council tax: F (2024/25 - £3,516.52per annum)
Current EPC rating: C
Floorplan
EPC
