Description
- 3 bedroom cottage with planning permission to enlarge
- Gardens and land of approximately 7 acres with yard
- Permission for separate studio/ancillary accommodation
- Rural location with 3.5 miles of Wadhurst village
- No chain
A very pretty semi-detached period cottage with planning permission to extend and create a 4-bedroom house, with gardens and grounds of approximately 7 acres, situated in a rural position down a no through lane, adjoining open countryside and within the easy reach of village amenities and the station. NO CHAIN.
A very pretty semi-detached period cottage with planning permission to extend and create a 4-bedroom house, with gardens and grounds of approximately 7 acres, situated in a rural position down a no through lane, adjoining open countryside and within the easy reach of village amenities and the station. NO CHAIN.
Situation: The property is situated in a quiet rural position down a private lane bordering open countryside within just 3½ miles of Wadhurst village, which offers an excellent range of shops and services for everyday needs including a Jempson’s Local store and post office, cafés, delicatessen, butcher, baker, pharmacy, bookshop, art gallery, florist, off licence, public houses, as well as a doctor’s surgery, dentist, primary school and the well regarded Uplands Community College and Sports Centre.
For the commuter, Wadhurst mainline station lies within 4¼ miles and provides a regular service to London Charing Cross/Cannon Street in approximately an hour. The A21 is also within easy reach and links with the M25. The regional centre of Tunbridge Wells is about 9 miles distant and provides a comprehensive range of amenities including the Royal Victoria Shopping centre, cinema complex and theatres.
The beautiful surrounding countryside is a designated Area of Outstanding Natural Beauty, with the cottage adjoining beautiful countryside and benefiting from nearby walks to Batts Wood, Wadhurst Park and Snape Woodlands; and Bewl Water Reservoir is also with easy reach.
Description: Fielden Cottage is a delightful period cottage of approximately 1,097sq.ft/102sq.m with attractive brick and tile hung elevations beneath a tiled roof and double-glazed windows.
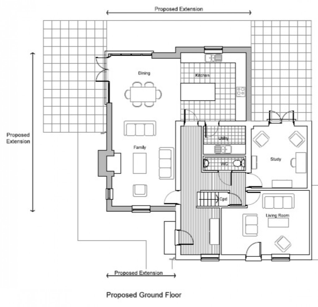
The property benefits from being unlisted and from having planning permission (Ref: WD/2024/0123/F) to almost double the size, by extending to the side (West) and remodelling the living space to create a large open plan kitchen/dining/ family room, utility room, cloakroom, sitting room and study on the ground floor, and 4 bedrooms and 3 bathrooms on the first floor.
The property benefits from a southwest facing aspect and enjoys a lovely outlook over its land and surrounding countryside from most of the rooms. There is also development certification (Ref: WD/2024/2416/LDP) for a separate studio/ancillary accommodation.
The accommodation currently includes a wc/utility room, a kitchen which is open plan to a dining room, a sitting room and a family room. On the first floor are three bedrooms (two doubles and a single and a family bathroom.
Outside, the property has off road parking for several cars with plenty of space for garaging, if required, with a five-bar gate giving access to a yard (previously containing various loose boxes). The gardens wrap around the cottage and are bordered by its land, which is arranged into five paddocks with post and rail fencing; there are also two lightly wooded areas with ponds -the whole extending to approximately 7 acres (TBV).
Services: Mains water and electricity. Oil-fired central heating. Shared private drainage.
Current EPC Rating: E
Local Authority: Wealden District Council (01892) 653311
Council Tax Band: D (2025/26 - £2,578.80)
Floorplan
EPC
