Description
- Immaculately presented and spacious family home with well-appointed kitchen
- Downstairs w/c
- 4 Bedrooms
- 2 bathrooms with ensuite to the principal
- Award winning landscaped garden with southerly aspect
- Parking for 2 cars
- Guest Parking
A beautifully presented and spacious 4-bedroom semi-detached family home, featuring a multiple award-winning garden with southerly aspect, located within a sought-after development, and situated within easy reach of the town centre, station, and The Pantiles.
A beautifully presented and spacious 4-bedroom semi-detached family home, featuring a multiple award-winning garden with southerly aspect, located within a sought-after development, and situated within easy reach of the town centre, station, and The Pantiles.
Situation: The property is situated within a sought-after area of Tunbridge Wells, in a prestigious and family friendly development, within easy reach of the town centre, station, and the famous Pantiles area.
Tunbridge Wells provides a comprehensive range of amenities including the Royal Victoria Place shopping centre, cinema complex and theatres. There are also a number of well-regarded schools in the area, including grammar schools for both girls and boys.
For the commuter, Tunbridge Wells mainline station serves London Bridge, Charing Cross and Cannon Street in under an hour. The A21 is also within close proximity and links with the M25.
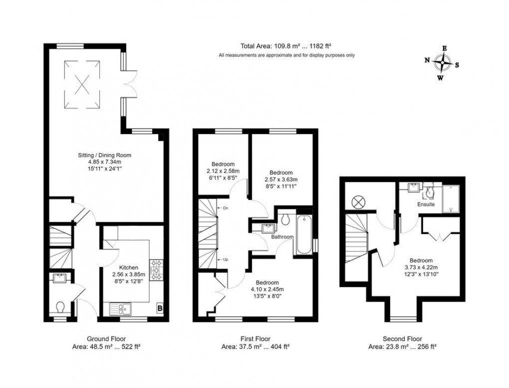
Description: This desirable property is an attractive and well-presented family home providing spacious accommodation over three floors. The home benefits from having been improved internally by the current owner and features a Tunbridge Wells in bloom multiple award-winning garden.
The accommodation is arranged over three floors and includes, on the ground floor; a spacious entrance hall with attractive gloss floor tiles; downstairs w/c with attractive wall and gloss floor tiling in addition to a chrome heated towel rail; a well-proportioned kitchen/breakfast room featuring a wide range of gloss wall and base units with complementary granite work surfaces and splashbacks, integrated Bosch appliances including a five ring hob with feature extractor, double oven, washer/dryer, and full size fridge and freezer. The noticeably spacious dual aspect living area (extending to almost 24ft) is light and airy with feature skylight, French doors providing access to the garden and adjacent good-sized understairs cupboard. On the first floor is a landing, three bedrooms, the larger of which benefiting from fitted wardrobes, and a well-proportioned family bathroom featuring bath with mixer tap and shower over, fitted glass shower screen, with the room being complimented by attractive wall and floor tiles, chrome heated towel rail, and mirrored wall cabinet. In addition, the bathroom is configured in a ‘Jack and Jill’ style to create an ensuite to the largest bedroom.
On the top floor is a landing with doors leading to a large airing cupboard, and the principal bedroom benefiting from fitted wardrobes, and an ensuite bathroom with large walk-in shower, fitted shower screens, chrome heated towel rail, and attractive wall and floor tiling.
To the front of the property there are two parking spaces and an area of bedding with mature shrubs and plants, and to the rear an impressive and delightful award-winning garden featuring a dazzling array of established perennial plants and shrubs, apricot, pear, and cherry trees, a small wildlife pond, shed, and a patio area ideal for entertaining with an electric awning overhead.
Services: Mains water and electricity. Gas-fired central heating.
Local Authority: Tunbridge Wells Borough Council (01892) 526121
Council tax band F
Current EPC Rating: B
Property postcode: TN2 5FA
Floorplan
EPC
